狭山市 大字水野 新築一戸建てのの物件情報・売買仲介はブルーノートホーム

営業時間/09:00~18:00
定休日/火曜日・水曜日
株式会社ブルーノートホーム 04-2938-5050
狭山市 大字水野 新築一戸建て

所沢市 不動産狭山市 大字水野 新築一戸建て

狭山市 大字水野 新築一戸建ての新築一戸建て情報はブルーノートホーム

〔物件ID〕 0000011806
  • 新築戸建
  • 値下げ
3,680 万円
所在地 埼玉県狭山市大字水野
交通 西武新宿線「入曽」駅 徒歩18分
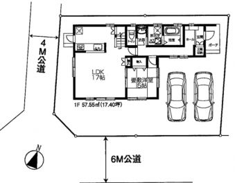
建築面積 99.78m2 (30.18坪)
土地面積 149.28m2 (45.15坪)
築年月 2025年08月(令和7年08月)
間取り 4LDK
  • 南面道路
  • 低層住居専用地域
  • 新耐震基準
  • 駐車場2台以上
狭山市 大字水野 新築一戸建ての物件写真
狭山市 大字水野 新築一戸建てのMAP・周辺環境
狭山市 大字水野 新築一戸建ての物件概要
所在地 埼玉県狭山市大字水野
交通 西武新宿線「入曽」駅 徒歩18分
価格 3,680万円
小学校区---中学校区---
建物面積 99.78m2(30.18坪) 土地面積 149.28m2(45.15坪)
間取り 4LDK 構造 木造
築年月 2025年08月(令和7年08月) 総戸数 ---
土地権利 所有権 地目 宅地
私道負担/私道面積 --- セットバック/距離/面積 ---
都市計画 市街 用途地域 一低
建ぺい率 50% 容積率 80%
接道状況 角地
方向:南東      種別:公道      幅員:6m      間口:--
方向:南西      種別:公道      幅員:4m      間口:--
駐車場 --- 駐車場料金 ---
その他使用料 ---
現況 未完成 引渡 予定
取引態様 仲介 国土法届出 ---
設備 公営水道、公共下水、東京電力、都市ガス
コメント 建築確認番号:第SJK-KX245517230号
更新日 2026年01月30日 次回更新予定日 2026年02月13日
価格変更履歴
2026年01月23日

3,880万円

3,680万円

ローンシミュレーション
自己資金 万円
※別途、諸費用が必要です。
ローン借入額 万円
内ボーナス時支払い 万円
※ボーナス返済月の加算額ではありません。
※お借入れ予定額の50%以下の金額をご入力ください。
金利
返済年数
  • 月々(毎月返済額)
  • 0
  • ボーナス(ボーナス時加算額)
  • 0

物件情報と現況に差異がある場合、現況を優先します。
掲載物件は売却済み、売却中止、価格変更となる場合がありますので、予めご了承ください。
仲介物件には所定の仲介手数料(消費税含む)が必要です。

株式会社ブルーノートホーム
会社名 株式会社ブルーノートホーム
所在地 〒359-1162
所沢市和ケ原一丁目185番地101号室
交通 西武池袋線「狭山ヶ丘駅」徒歩12分
TEL 04-2938-5050
FAX 04-2938-5051
ホームページHP https://www.bluenotehome.com/
メールアドレスE-MAIL info@bluenotehome.com
免許番号 埼玉県知事(1)24648号
営業時間 9時~18時
定休日 火曜・水曜
物件を探す ×
物件種別
エリア
価格
建物面積
土地面積
専有面積
間取り
駅徒歩
築年数
こだわり条件
無料会員登録で
非公開物件をご覧いただけます!
会員登録で
物件数が大幅アップ!

公開物件486

公開物件+
非公開物件
1,226

現在の会員数
66

  • 会員登録は無料!
  • 会員専用マイページを作成!
  • 希望条件に合う新着・価格変更物件をメール配信!
  • 非公開物件が閲覧可能!
  • 他社にはない特別限定物件のご紹介チャンスあり!