リーベスト所沢のの物件情報・売買仲介はブルーノートホーム

営業時間/09:00~18:00
定休日/火曜日・水曜日
株式会社ブルーノートホーム 04-2938-5050
リーベスト所沢

所沢市 不動産リーベスト所沢

リーベスト所沢の中古マンション情報はブルーノートホーム

〔物件ID〕 0000012619
  • 中古マンション
  • 値下げ
2,298 万円
所在地 埼玉県所沢市大字北秋津
交通 西武池袋線「所沢」駅 徒歩15分
西武新宿線「所沢」駅徒歩15分
JR武蔵野線「新秋津」駅バス4分/停歩13分(バス停 グランド入口)
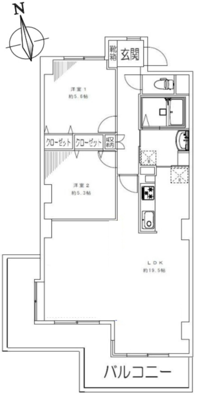
専有面積 77.78m2 (23.52坪)
間取り 3LDK
築年月 1992年03月(平成4年03月)
所在階/階数 7 階 / 9 階
リーベスト所沢の物件写真
リーベスト所沢のMAP・周辺環境
リーベスト所沢の物件概要
所在地 埼玉県所沢市大字北秋津
交通 西武池袋線「所沢」駅 徒歩15分
西武新宿線「所沢」駅徒歩15分
JR武蔵野線「新秋津」駅バス4分/停歩13分(バス停 グランド入口)
価格 2,298万円
小学校区南小学校 (距離 1200 m)中学校区南陵中学校 (距離 1110 m)
専有面積 77.78m2(23.52坪) 間取り 3LDK
バルコニー面積 16.18m2 バルコニー向き ---
その他面積 ---
構造 RC 所在階/階建 7階/9階
築年月 1992年03月(平成4年03月) 総戸数 89戸
土地権利 所有権 用途地域 一住
管理会社 伊藤忠アーバンコミュニティ(株)
管理形態 管理会社に全部委託 管理員 日勤
管理費 19,400円 修繕積立金 7,770円
駐車場 --- 駐車場料金 ---
その他使用料 ---
現況 空家 引渡 即時
取引態様 仲介 国土法届出 ---
設備 ---
コメント 「グランエミオ所沢」大型商業施設まで徒歩18分
更新日 2025年10月07日 次回更新予定日 2025年10月21日
価格変更履歴
2025年09月27日

2,498万円

2,298万円

ローンシミュレーション
自己資金 万円
※別途、諸費用が必要です。
ローン借入額 万円
内ボーナス時支払い 万円
※ボーナス返済月の加算額ではありません。
※お借入れ予定額の50%以下の金額をご入力ください。
金利
返済年数
  • 月々(毎月返済額)
  • 0
  • ボーナス(ボーナス時加算額)
  • 0

物件情報と現況に差異がある場合、現況を優先します。
掲載物件は売却済み、売却中止、価格変更となる場合がありますので、予めご了承ください。
仲介物件には所定の仲介手数料(消費税含む)が必要です。

株式会社ブルーノートホーム
会社名 株式会社ブルーノートホーム
所在地 〒359-1162
所沢市和ケ原一丁目185番地101号室
交通 西武池袋線「狭山ヶ丘駅」徒歩12分
TEL 04-2938-5050
FAX 04-2938-5051
ホームページHP https://www.bluenotehome.com/
メールアドレスE-MAIL info@bluenotehome.com
免許番号 埼玉県知事(1)24648号
営業時間 9時~18時
定休日 火曜・水曜
物件を探す ×
物件種別
エリア
価格
建物面積
土地面積
専有面積
間取り
駅徒歩
築年数
こだわり条件
無料会員登録で
非公開物件をご覧いただけます!
会員登録で
物件数が大幅アップ!

公開物件350

公開物件+
非公開物件
1,267

現在の会員数
56

  • 会員登録は無料!
  • 会員専用マイページを作成!
  • 希望条件に合う新着・価格変更物件をメール配信!
  • 非公開物件が閲覧可能!
  • 他社にはない特別限定物件のご紹介チャンスあり!