所沢市 大字亀ケ谷 中古一戸建てのの物件情報・売買仲介はブルーノートホーム

営業時間/09:00~18:00
定休日/火曜日・水曜日
株式会社ブルーノートホーム 04-2938-5050
所沢市 大字亀ケ谷 中古一戸建て

所沢市 不動産所沢市 大字亀ケ谷 中古一戸建て

所沢市 大字亀ケ谷 中古一戸建ての中古一戸建て情報はブルーノートホーム

〔物件ID〕 0000010888
  • 中古戸建
  • 値下げ
2,190 万円
所在地 埼玉県所沢市大字亀ケ谷
交通 JR武蔵野線「東所沢」駅 徒歩28分
建築面積 156.60m2 (47.37坪)
土地面積 398.00m2 (120.39坪)
築年月 1989年08月(平成元年08月)
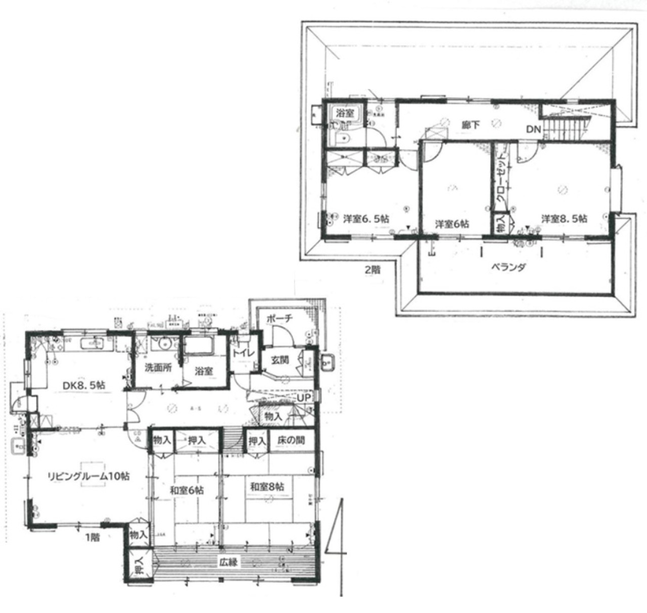
間取り 5LDK
  • 新耐震基準
  • 駐車場2台以上
所沢市 大字亀ケ谷 中古一戸建ての物件写真
所沢市 大字亀ケ谷 中古一戸建てのMAP・周辺環境
所沢市 大字亀ケ谷 中古一戸建ての物件概要
所在地 埼玉県所沢市大字亀ケ谷
交通 JR武蔵野線「東所沢」駅 徒歩28分
価格 2,190万円
小学校区---中学校区---
建物面積 156.60m2(47.37坪) 土地面積 398.00m2(120.39坪)
間取り 5LDK 構造 軽量鉄骨
築年月 1989年08月(平成元年08月) 総戸数 ---
土地権利 所有権 地目 山林
私道負担/私道面積 セットバック/距離/面積
都市計画 調整 用途地域 --
建ぺい率 60% 容積率 100%
接道状況 一方
方向:北      種別:公道      幅員:19m      間口:1.8m
駐車場 駐車場料金 ---
その他使用料 ---
現況 空家 引渡 相談
取引態様 仲介 国土法届出 ---
設備 公営水道、公共下水、東京電力、個別PG
コメント ---
更新日 2026年04月29日 次回更新予定日 2026年05月13日
価格変更履歴
2025年12月12日

2,580万円

2,190万円

ローンシミュレーション
自己資金 万円
※別途、諸費用が必要です。
ローン借入額 万円
内ボーナス時支払い 万円
※ボーナス返済月の加算額ではありません。
※お借入れ予定額の50%以下の金額をご入力ください。
金利
返済年数
  • 月々(毎月返済額)
  • 0
  • ボーナス(ボーナス時加算額)
  • 0

物件情報と現況に差異がある場合、現況を優先します。
掲載物件は売却済み、売却中止、価格変更となる場合がありますので、予めご了承ください。
仲介物件には所定の仲介手数料(消費税含む)が必要です。

株式会社ブルーノートホーム
会社名 株式会社ブルーノートホーム
所在地 〒359-1162
所沢市和ケ原一丁目185番地101号室
交通 西武池袋線「狭山ヶ丘駅」徒歩12分
TEL 04-2938-5050
FAX 04-2938-5051
ホームページHP https://www.bluenotehome.com/
メールアドレスE-MAIL info@bluenotehome.com
免許番号 埼玉県知事(1)24648号
営業時間 9時~18時
定休日 火曜・水曜
物件を探す ×
物件種別
エリア
価格
建物面積
土地面積
専有面積
間取り
駅徒歩
築年数
こだわり条件
無料会員登録で
非公開物件をご覧いただけます!
会員登録で
物件数が大幅アップ!

公開物件507

公開物件+
非公開物件
1,195

現在の会員数
69

  • 会員登録は無料!
  • 会員専用マイページを作成!
  • 希望条件に合う新着・価格変更物件をメール配信!
  • 非公開物件が閲覧可能!
  • 他社にはない特別限定物件のご紹介チャンスあり!