入間市 大字下藤沢 中古一戸建てのの物件情報・売買仲介はブルーノートホーム

営業時間/09:00~18:00
定休日/火曜日・水曜日
株式会社ブルーノートホーム 04-2938-5050
入間市 大字下藤沢 中古一戸建て

所沢市 不動産入間市 大字下藤沢 中古一戸建て

入間市 大字下藤沢 中古一戸建ての中古一戸建て情報はブルーノートホーム

〔物件ID〕 0000010984
  • 中古戸建
  • 値下げ
2,780 万円
所在地 埼玉県入間市大字下藤沢
交通 西武池袋線「武蔵藤沢」駅 徒歩14分
建築面積 81.63m2 (24.69坪)
土地面積 68.26m2 (20.64坪)
築年月 2022年09月(令和4年09月)
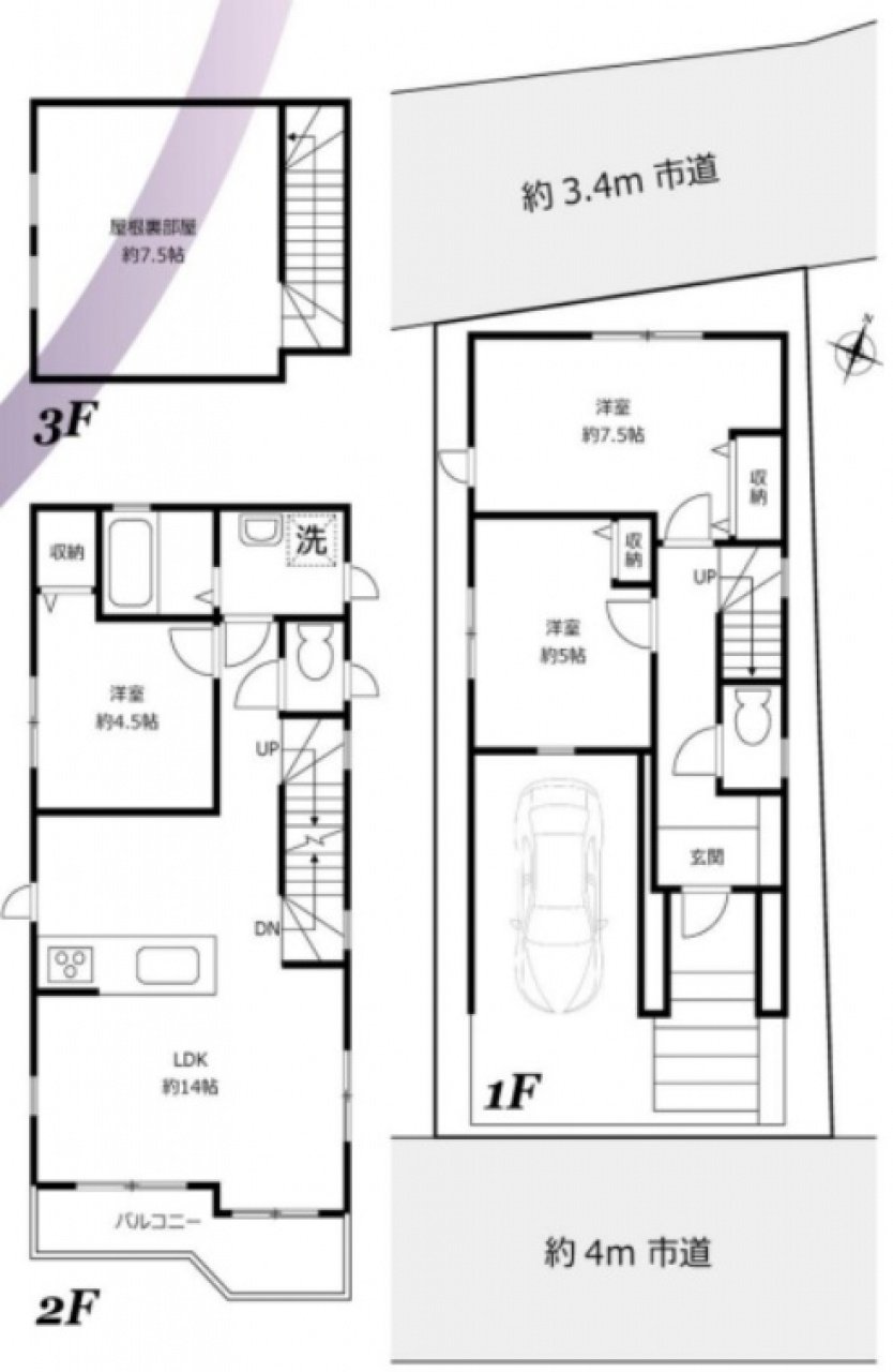
間取り 3SLDK
  • 南面道路
  • 新耐震基準
  • 駐車場あり
入間市 大字下藤沢 中古一戸建ての物件写真
入間市 大字下藤沢 中古一戸建てのMAP・周辺環境
入間市 大字下藤沢 中古一戸建ての物件概要
所在地 埼玉県入間市大字下藤沢
交通 西武池袋線「武蔵藤沢」駅 徒歩14分
価格 2,780万円
小学校区---中学校区---
建物面積 81.63m2(24.69坪) 土地面積 68.26m2(20.64坪)
間取り 3SLDK 構造 木造
築年月 2022年09月(令和4年09月) 総戸数 ---
土地権利 所有権 地目 宅地
私道負担/私道面積 --- セットバック/距離/面積 ---
都市計画 市街 用途地域 一住
建ぺい率 60% 容積率 200%
接道状況 二方
方向:南東      種別:--      幅員:4m      間口:--
方向:北西      種別:--      幅員:3.4m      間口:--
駐車場 駐車場料金 ---
その他使用料 ---
現況 空家 引渡 相談
取引態様 仲介 国土法届出 ---
設備 都市ガス
コメント ---
更新日 2026年02月05日 次回更新予定日 2026年02月19日
価格変更履歴
2025年10月11日

2,880万円

2,780万円

ローンシミュレーション
自己資金 万円
※別途、諸費用が必要です。
ローン借入額 万円
内ボーナス時支払い 万円
※ボーナス返済月の加算額ではありません。
※お借入れ予定額の50%以下の金額をご入力ください。
金利
返済年数
  • 月々(毎月返済額)
  • 0
  • ボーナス(ボーナス時加算額)
  • 0

物件情報と現況に差異がある場合、現況を優先します。
掲載物件は売却済み、売却中止、価格変更となる場合がありますので、予めご了承ください。
仲介物件には所定の仲介手数料(消費税含む)が必要です。

株式会社ブルーノートホーム
会社名 株式会社ブルーノートホーム
所在地 〒359-1162
所沢市和ケ原一丁目185番地101号室
交通 西武池袋線「狭山ヶ丘駅」徒歩12分
TEL 04-2938-5050
FAX 04-2938-5051
ホームページHP https://www.bluenotehome.com/
メールアドレスE-MAIL info@bluenotehome.com
免許番号 埼玉県知事(1)24648号
営業時間 9時~18時
定休日 火曜・水曜
物件を探す ×
物件種別
エリア
価格
建物面積
土地面積
専有面積
間取り
駅徒歩
築年数
こだわり条件
無料会員登録で
非公開物件をご覧いただけます!
会員登録で
物件数が大幅アップ!

公開物件453

公開物件+
非公開物件
1,234

現在の会員数
66

  • 会員登録は無料!
  • 会員専用マイページを作成!
  • 希望条件に合う新着・価格変更物件をメール配信!
  • 非公開物件が閲覧可能!
  • 他社にはない特別限定物件のご紹介チャンスあり!