狭山市 大字水野 新築一戸建て 1号棟のの物件情報・売買仲介はブルーノートホーム

営業時間/09:00~18:00
定休日/火曜日・水曜日
株式会社ブルーノートホーム 04-2938-5050
狭山市 大字水野 新築一戸建て 1号棟

所沢市 不動産狭山市 大字水野 新築一戸建て 1号棟

狭山市 大字水野 新築一戸建て 1号棟の新築一戸建て情報はブルーノートホーム

〔物件ID〕 0000012724
  • 新築戸建
  • 値下げ
2,990 万円
所在地 埼玉県狭山市大字水野
交通 西武新宿線「入曽」駅 徒歩19分
建築面積 85.39m2 (25.83坪)
土地面積 107.41m2 (32.49坪)
築年月 2025年07月(令和7年07月)
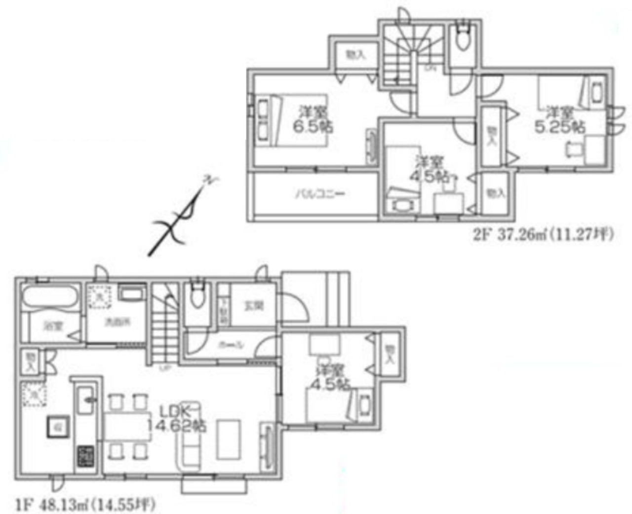
間取り 4LDK
  • 低層住居専用地域
  • 新耐震基準
  • 駐車場2台以上
狭山市 大字水野 新築一戸建て 1号棟の物件写真
  • 1号棟

  • 1号棟

狭山市 大字水野 新築一戸建て 1号棟のMAP・周辺環境
狭山市 大字水野 新築一戸建て 1号棟の物件概要
所在地 埼玉県狭山市大字水野
交通 西武新宿線「入曽」駅 徒歩19分
価格 2,990万円
小学校区山王小学校 (距離 1760 m)中学校区山王中学校 (距離 1040 m)
建物面積 85.39m2(25.83坪) 土地面積 107.41m2(32.49坪)
間取り 4LDK 構造 木造
築年月 2025年07月(令和7年07月) 総戸数 ---
土地権利 所有権 地目 宅地
私道負担/私道面積 --- セットバック/距離/面積 ---
都市計画 市街 用途地域 一低
建ぺい率 50% 容積率 80%
接道状況 一方
方向:--      種別:公道      幅員:--      間口:--
駐車場 駐車場料金 ---
その他使用料 ---
現況 未完成 引渡 相談
取引態様 仲介 国土法届出 ---
設備 公営水道、公共下水、東京電力、集中PG
コメント 建築確認番号:第HPA-25-03864-1号
更新日 2025年10月07日 次回更新予定日 2025年10月21日
価格変更履歴

価格変更履歴については、
担当者にお問い合わせください。

ローンシミュレーション
自己資金 万円
※別途、諸費用が必要です。
ローン借入額 万円
内ボーナス時支払い 万円
※ボーナス返済月の加算額ではありません。
※お借入れ予定額の50%以下の金額をご入力ください。
金利
返済年数
  • 月々(毎月返済額)
  • 0
  • ボーナス(ボーナス時加算額)
  • 0

物件情報と現況に差異がある場合、現況を優先します。
掲載物件は売却済み、売却中止、価格変更となる場合がありますので、予めご了承ください。
仲介物件には所定の仲介手数料(消費税含む)が必要です。

株式会社ブルーノートホーム
会社名 株式会社ブルーノートホーム
所在地 〒359-1162
所沢市和ケ原一丁目185番地101号室
交通 西武池袋線「狭山ヶ丘駅」徒歩12分
TEL 04-2938-5050
FAX 04-2938-5051
ホームページHP https://www.bluenotehome.com/
メールアドレスE-MAIL info@bluenotehome.com
免許番号 埼玉県知事(1)24648号
営業時間 9時~18時
定休日 火曜・水曜
物件を探す ×
物件種別
エリア
価格
建物面積
土地面積
専有面積
間取り
駅徒歩
築年数
こだわり条件
無料会員登録で
非公開物件をご覧いただけます!
会員登録で
物件数が大幅アップ!

公開物件345

公開物件+
非公開物件
1,253

現在の会員数
57

  • 会員登録は無料!
  • 会員専用マイページを作成!
  • 希望条件に合う新着・価格変更物件をメール配信!
  • 非公開物件が閲覧可能!
  • 他社にはない特別限定物件のご紹介チャンスあり!