狭山市 柏原 中古一戸建てのの物件情報・売買仲介はブルーノートホーム

営業時間/09:00~18:00
定休日/火曜日・水曜日
株式会社ブルーノートホーム 04-2938-5050
狭山市 柏原 中古一戸建て

所沢市 不動産狭山市 柏原 中古一戸建て

狭山市 柏原 中古一戸建ての中古一戸建て情報はブルーノートホーム

〔物件ID〕 0000012756
  • 中古戸建
  • 値下げ
2,799 万円
所在地 埼玉県狭山市柏原
交通 西武新宿線「狭山市」駅 バス10分/停歩3分(バス停 柏原東)
西武新宿線「新狭山」駅徒歩40分
建築面積 96.05m2 (29.05坪)
土地面積 183.89m2 (55.62坪)
築年月 1980年06月(昭和55年06月)
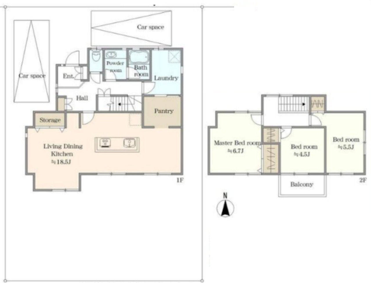
間取り 3LDK
  • 低層住居専用地域
  • 駐車場2台以上
狭山市 柏原 中古一戸建ての物件写真
狭山市 柏原 中古一戸建てのMAP・周辺環境
狭山市 柏原 中古一戸建ての物件概要
所在地 埼玉県狭山市柏原
交通 西武新宿線「狭山市」駅 バス10分/停歩3分(バス停 柏原東)
西武新宿線「新狭山」駅徒歩40分
価格 2,799万円
小学校区柏原小学校 (距離 1100 m)中学校区柏原中学校 (距離 900 m)
建物面積 96.05m2(29.05坪) 土地面積 183.89m2(55.62坪)
間取り 3LDK 構造 木造
築年月 1980年06月(昭和55年06月) 総戸数 ---
土地権利 所有権 地目 宅地
私道負担/私道面積 セットバック/距離/面積 ---
都市計画 市街 用途地域 一低
建ぺい率 50% 容積率 80%
接道状況 一方
方向:北      種別:公道      幅員:6.2m      間口:11.4m
駐車場 駐車場料金 ---
その他使用料 ---
現況 空家 引渡 相談
取引態様 仲介 国土法届出 ---
設備 公営水道、公共下水、東京電力、都市ガス
コメント ---
更新日 2025年11月21日 次回更新予定日 2025年12月05日
価格変更履歴

価格変更履歴については、
担当者にお問い合わせください。

ローンシミュレーション
自己資金 万円
※別途、諸費用が必要です。
ローン借入額 万円
内ボーナス時支払い 万円
※ボーナス返済月の加算額ではありません。
※お借入れ予定額の50%以下の金額をご入力ください。
金利
返済年数
  • 月々(毎月返済額)
  • 0
  • ボーナス(ボーナス時加算額)
  • 0

物件情報と現況に差異がある場合、現況を優先します。
掲載物件は売却済み、売却中止、価格変更となる場合がありますので、予めご了承ください。
仲介物件には所定の仲介手数料(消費税含む)が必要です。

株式会社ブルーノートホーム
会社名 株式会社ブルーノートホーム
所在地 〒359-1162
所沢市和ケ原一丁目185番地101号室
交通 西武池袋線「狭山ヶ丘駅」徒歩12分
TEL 04-2938-5050
FAX 04-2938-5051
ホームページHP https://www.bluenotehome.com/
メールアドレスE-MAIL info@bluenotehome.com
免許番号 埼玉県知事(1)24648号
営業時間 9時~18時
定休日 火曜・水曜
物件を探す ×
物件種別
エリア
価格
建物面積
土地面積
専有面積
間取り
駅徒歩
築年数
こだわり条件
無料会員登録で
非公開物件をご覧いただけます!
会員登録で
物件数が大幅アップ!

公開物件245

公開物件+
非公開物件
1,333

現在の会員数
61

  • 会員登録は無料!
  • 会員専用マイページを作成!
  • 希望条件に合う新着・価格変更物件をメール配信!
  • 非公開物件が閲覧可能!
  • 他社にはない特別限定物件のご紹介チャンスあり!