狭山市 富士見1丁目 新築一戸建てのの物件情報・売買仲介はブルーノートホーム

営業時間/09:00~18:00
定休日/火曜日・水曜日
株式会社ブルーノートホーム 04-2938-5050
狭山市 富士見1丁目 新築一戸建て

所沢市 不動産狭山市 富士見1丁目 新築一戸建て

狭山市 富士見1丁目 新築一戸建ての新築一戸建て情報はブルーノートホーム

〔物件ID〕 0000014814
  • 新築戸建
3,780 万円
所在地 埼玉県狭山市富士見1丁目
交通 西武新宿線「狭山市」駅 徒歩11分
建築面積 95.22m2 (28.8坪)
土地面積 100.51m2 (30.4坪)
築年月 2026年05月(令和8年05月)
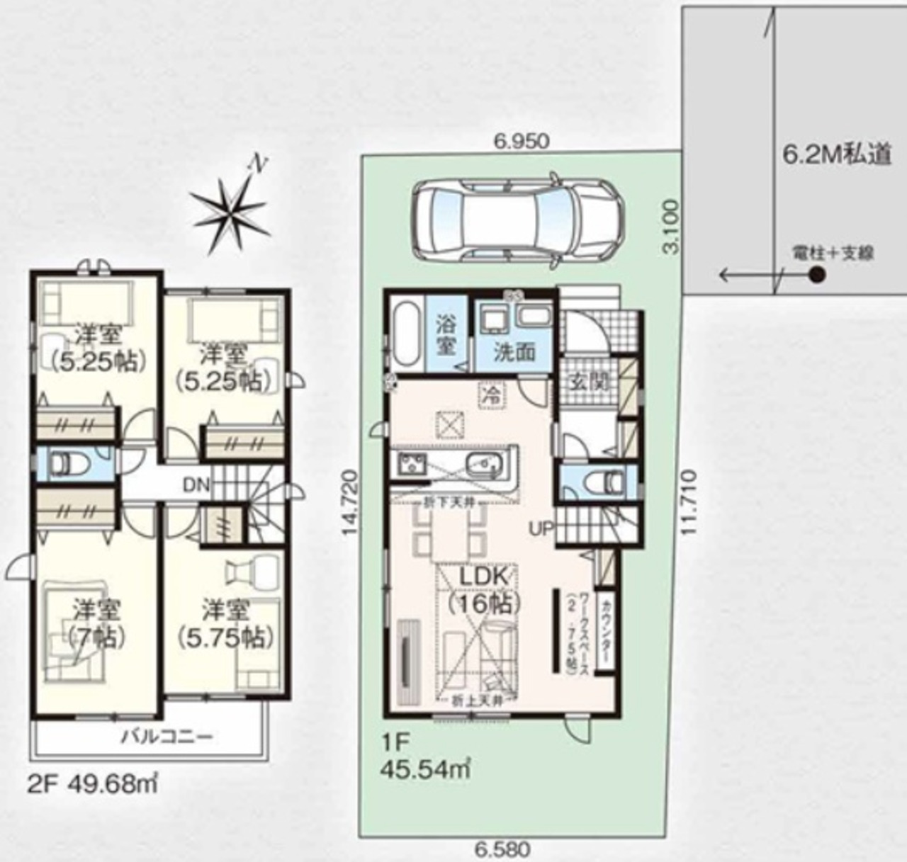
間取り 4LDK
  • 新耐震基準
  • 駐車場あり
狭山市 富士見1丁目 新築一戸建ての物件写真
狭山市 富士見1丁目 新築一戸建てのMAP・周辺環境
狭山市 富士見1丁目 新築一戸建ての物件概要
所在地 埼玉県狭山市富士見1丁目
交通 西武新宿線「狭山市」駅 徒歩11分
価格 3,780万円
小学校区富士見小学校 (距離 880 m)中学校区狭山台中学校 (距離 2000 m)
建物面積 95.22m2(28.8坪) 土地面積 100.51m2(30.4坪)
間取り 4LDK 構造 木造
築年月 2026年05月(令和8年05月) 総戸数 ---
土地権利 所有権 地目 宅地
私道負担/私道面積 --- セットバック/距離/面積 ---
都市計画 市街 用途地域 一中
建ぺい率 60% 容積率 200%
接道状況 ---
駐車場 駐車場料金 ---
その他使用料 ---
現況 未完成 引渡 相談
取引態様 仲介 国土法届出 ---
設備 公営水道、公共下水、東京電力、個別PG
コメント ---
更新日 2026年04月17日 次回更新予定日 2026年05月01日
ローンシミュレーション
自己資金 万円
※別途、諸費用が必要です。
ローン借入額 万円
内ボーナス時支払い 万円
※ボーナス返済月の加算額ではありません。
※お借入れ予定額の50%以下の金額をご入力ください。
金利
返済年数
  • 月々(毎月返済額)
  • 0
  • ボーナス(ボーナス時加算額)
  • 0

物件情報と現況に差異がある場合、現況を優先します。
掲載物件は売却済み、売却中止、価格変更となる場合がありますので、予めご了承ください。
仲介物件には所定の仲介手数料(消費税含む)が必要です。

株式会社ブルーノートホーム
会社名 株式会社ブルーノートホーム
所在地 〒359-1162
所沢市和ケ原一丁目185番地101号室
交通 西武池袋線「狭山ヶ丘駅」徒歩12分
TEL 04-2938-5050
FAX 04-2938-5051
ホームページHP https://www.bluenotehome.com/
メールアドレスE-MAIL info@bluenotehome.com
免許番号 埼玉県知事(1)24648号
営業時間 9時~18時
定休日 火曜・水曜
物件を探す ×
物件種別
エリア
価格
建物面積
土地面積
専有面積
間取り
駅徒歩
築年数
こだわり条件
無料会員登録で
非公開物件をご覧いただけます!
会員登録で
物件数が大幅アップ!

公開物件545

公開物件+
非公開物件
1,133

現在の会員数
69

  • 会員登録は無料!
  • 会員専用マイページを作成!
  • 希望条件に合う新着・価格変更物件をメール配信!
  • 非公開物件が閲覧可能!
  • 他社にはない特別限定物件のご紹介チャンスあり!