所沢市 中新井5丁目 新築一戸建て 1号棟のの物件情報・売買仲介はブルーノートホーム

営業時間/09:00~18:00
定休日/火曜日・水曜日
株式会社ブルーノートホーム 04-2938-5050
所沢市 中新井5丁目 新築一戸建て 1号棟

所沢市 不動産所沢市 中新井5丁目 新築一戸建て 1号棟

所沢市 中新井5丁目 新築一戸建て 1号棟の新築一戸建て情報はブルーノートホーム

〔物件ID〕 0000015333
  • 新築戸建
  • 新着
3,680 万円
所在地 埼玉県所沢市中新井5丁目
交通 西武新宿線「新所沢」駅 バス8分/停歩3分(バス停 ニュータウン中央)
西武新宿線「所沢」駅バス15分/停歩3分(バス停 ニュータウン中央)
建築面積 94.36m2 (28.54坪)
土地面積 97.84m2 (29.59坪)
築年月 2026年06月(令和8年06月)
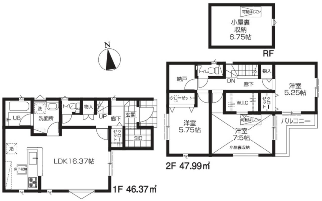
間取り 3LDK
  • 低層住居専用地域
  • 新耐震基準
  • 駐車場あり
所沢市 中新井5丁目 新築一戸建て 1号棟の物件写真
  • 1号棟

  • 1号棟

  • 1号棟

所沢市 中新井5丁目 新築一戸建て 1号棟のMAP・周辺環境
所沢市 中新井5丁目 新築一戸建て 1号棟の物件概要
所在地 埼玉県所沢市中新井5丁目
交通 西武新宿線「新所沢」駅 バス8分/停歩3分(バス停 ニュータウン中央)
西武新宿線「所沢」駅バス15分/停歩3分(バス停 ニュータウン中央)
価格 3,680万円
小学校区中央小学校 (徒歩 11 分)中学校区美原中学校 (徒歩 33 分)
建物面積 94.36m2(28.54坪) 土地面積 97.84m2(29.59坪)
間取り 3LDK 構造 木造
築年月 2026年06月(令和8年06月) 総戸数 ---
土地権利 所有権 地目 宅地
私道負担/私道面積 --- セットバック/距離/面積 ---
都市計画 市街 用途地域 一低
建ぺい率 50% 容積率 80%
接道状況 ---
駐車場 駐車場料金 ---
その他使用料 ---
現況 未完成 引渡 予定
取引態様 仲介 国土法届出 ---
設備 公営水道、公共下水、東京電力、都市ガス
コメント 建築確認番号:第R07SHC127273号
本地内一部第一種中高層住居地域 : 建ぺい率60% 容積率200%
更新日 2026年03月03日 次回更新予定日 2026年03月17日
ローンシミュレーション
自己資金 万円
※別途、諸費用が必要です。
ローン借入額 万円
内ボーナス時支払い 万円
※ボーナス返済月の加算額ではありません。
※お借入れ予定額の50%以下の金額をご入力ください。
金利
返済年数
  • 月々(毎月返済額)
  • 0
  • ボーナス(ボーナス時加算額)
  • 0

物件情報と現況に差異がある場合、現況を優先します。
掲載物件は売却済み、売却中止、価格変更となる場合がありますので、予めご了承ください。
仲介物件には所定の仲介手数料(消費税含む)が必要です。

株式会社ブルーノートホーム
会社名 株式会社ブルーノートホーム
所在地 〒359-1162
所沢市和ケ原一丁目185番地101号室
交通 西武池袋線「狭山ヶ丘駅」徒歩12分
TEL 04-2938-5050
FAX 04-2938-5051
ホームページHP https://www.bluenotehome.com/
メールアドレスE-MAIL info@bluenotehome.com
免許番号 埼玉県知事(1)24648号
営業時間 9時~18時
定休日 火曜・水曜
物件を探す ×
物件種別
エリア
価格
建物面積
土地面積
専有面積
間取り
駅徒歩
築年数
こだわり条件
無料会員登録で
非公開物件をご覧いただけます!
会員登録で
物件数が大幅アップ!

公開物件570

公開物件+
非公開物件
1,140

現在の会員数
66

  • 会員登録は無料!
  • 会員専用マイページを作成!
  • 希望条件に合う新着・価格変更物件をメール配信!
  • 非公開物件が閲覧可能!
  • 他社にはない特別限定物件のご紹介チャンスあり!